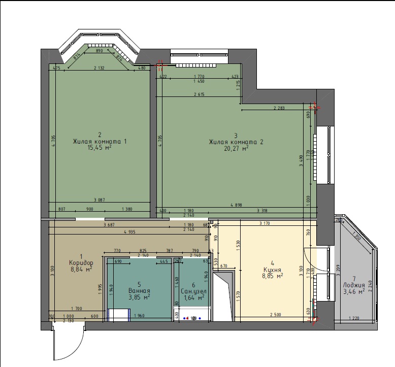
N 145.Капитальный ремонт двухкомнатной квартиры, в Королеве.
Первый этап
Второй этап
Третий этап
Червертый этап
Пятый этап
Перечень работ: все работы выполняются строго в соответствии с проектом, кроме установки дверей, кондиционирования, замены отопления.


